Préciser votre budget :
OK
Préciser les pièces :
OK
Préciser les chambres :
OK
Préciser la surface :
OK
Préciser la surface :
OK
Plus de critères
Retour aux annonces

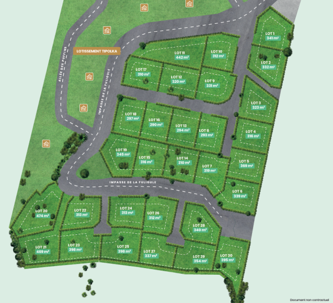
A vendre Terrain 312 m² Saint-Paul (97460) - Réunion

220 000 € FAI* soit 705 € /m²
miniature miniature miniature miniature
Empruntez aux meilleures conditionslogo meilleur taux

A VENDRE - PARCELLE VIABILISÉE DE 312 M2 À MARIE CAZE, LA PLAINE SAINT PAUL

Entre Savanna et la Plaine Saint Paul, CBo Territoria développe au coeur du nouveau Quartier de Marie Caze, le lotissement Zoiseau Blanc.Découvrez ces parcelles viabilisées et prêtes à bâtir, à proximité du lycée Saint-Paul IV, du CHOR et des commerces de proximité, et devenez propriétaire dans un environnement privilégié et résidentiel de l'ouest.Nous vous proposons cette parcelle de 312 m2 qui n'attend plus que votre future maison.
Prix de vente : 220 000 € FAI TTC Prix net vendeur : 208 065 € TTC Honoraires : 11 935 € TTC à la charge du vendeur
Les informations sur les risques auxquels ce bien est exposé sont disponibles sur le site Géorisques : www.georisques.gouv.fr

Caractéristiques de ce terrain à vendre à Saint-Paul (97460)

  • Surface habitable : 312 m²
  • Surface du terrain : 312 m²
  • Référence de l'annonce : 759-10
  • Prix de vente : 220 000 € FAI (Frais d'Agence Inclus)*
Empruntez aux meilleures conditionslogo meilleur taux

Cette annonce immobilière vous est proposée par :

L'AGENCE BY CBO

97438 Sainte-Marie

Ce bien vous intéresse ?
Contactez l'agence dès aujourd'hui...

En savoir plus sur l'agence L'AGENCE BY CBO

Cette agence immobilière propose à ce jour 95 biens à la vente sur Immodesiles.fr.

Vous pouvez consulter le barème d'honoraires de l'agence.

Autres terrains à vendre à Saint-Paul (97460), susceptibles de vous intéresser

parcelle de terrain avec vue mer à saint-paul 1 Terrain 976 m² Saint-Paul (97460) terrain 976 m² À vendre – Terrain de 916 m² avec vue mer à Saint-Paul Parcelle de 916 m² située dans un secteur calme et recherché, offrant une vue mer exceptionnelle. Idéal pour un projet résidentiel ou d’investissement. Caractéristiques : – Zone PLU UC6 – Emprise au sol libre – Construction po... Réf. 2849Outremer Immobilier 254 190 € soit 260 € /m² a vendre terrain de 400 m2 à bois de nefles saint-paul avec vue sur mer 1 Terrain Saint-Paul (97460) Belle opportunité pour projet d'une résidence principale localisation en zone urbanisme U6C avec vue sur mer .Pour tous renseignements complémentaires ,veuillez contacter Teddy MAQUIHA au : [coordonnées réservées] Honoraires à la charge du vendeur 14A70765, Numéro de mandat: 1033 SPV TÃ... Réf. 1033 SPVOfim 223 000 € a vendre - parcelle viabilisée de 291 m2 à marie caze, la plaine saint paul 3 Terrain 291 m² Saint-Paul (97460) terrain 291 m² Entre Savanna et la Plaine Saint Paul, CBo Territoria  développe au coeur du nouveau Quartier de Marie Caze, le lotissement Les Zirondelles. Découvrez ces parcelles viabilisées et prêtes à bâtir, à proximité du lycée Saint-Paul IV, du CHOR et des commerces de proximité, et devenez propriÃ... Réf. 751-34L'agence By Cbo 190 000 € soit 653 € /m² a vendre - parcelle viabilisÉe de 341 m2 À marie caze, la plaine saint paul 2 Terrain 341 m² Saint-Paul (97460) terrain 341 m² Entre Savanna et la Plaine Saint Paul, CBo Territoria développe au coeur du nouveau Quartier de Marie Caze, le lotissement Zoiseau Blanc. Découvrez ces parcelles viabilisées et prêtes à bâtir, à proximité du lycée Saint-Paul IV, du CHOR et des commerces de proximité, et devenez propriétai... Réf. 759-01L'agence By Cbo 230 000 € soit 674 € /m² a vendre - parcelle viabilisÉe de 316 m2 À marie caze, la plaine saint paul 2 Terrain 316 m² Saint-Paul (97460) terrain 316 m² Entre Savanna et la Plaine Saint Paul, CBo Territoria développe au coeur du nouveau Quartier de Marie Caze, le lotissement Zoiseau Blanc.Découvrez ces parcelles viabilisées et prêtes à bâtir, à proximité du lycée Saint-Paul IV, du CHOR et des commerces de proximité, et devenez propriétair... Réf. 759-04L'agence By Cbo 210 000 € soit 665 € /m²