Préciser votre budget :
OK
Préciser les pièces :
OK
Préciser les chambres :
OK
Préciser la surface :
OK
Préciser la surface :
OK
Plus de critères
Retour aux annonces

A vendre Terrain 316 m² Saint-Paul (97460) - Réunion

210 000 € FAI* soit 665 € /m²
miniature miniature
Empruntez aux meilleures conditionslogo meilleur taux

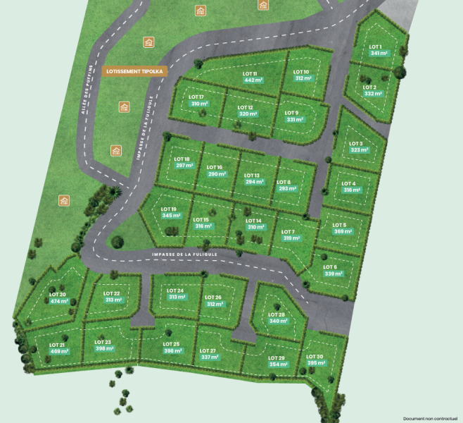
A VENDRE - PARCELLE VIABILISÉE DE 316 M2 À MARIE CAZE, LA PLAINE SAINT PAUL

Entre Savanna et la Plaine Saint Paul, CBo Territoria développe au coeur du nouveau Quartier de Marie Caze, le lotissement Zoiseau Blanc.Découvrez ces parcelles viabilisées et prêtes à bâtir, à proximité du lycée Saint-Paul IV, du CHOR et des commerces de proximité, et devenez propriétaire dans un environnement privilégié et résidentiel de l'ouest.Nous vous proposons cette parcelle de 316 m2 qui n'attend plus que votre future maison.
Prix de vente : 210 000 € FAI TTC Prix net vendeur : 198 608 € TTC Honoraires : 11 393 € TTC à la charge du vendeur
Les informations sur les risques auxquels ce bien est exposé sont disponibles sur le site Géorisques : www.georisques.gouv.fr

Caractéristiques de ce terrain à vendre à Saint-Paul (97460)

  • Surface habitable : 316 m²
  • Surface du terrain : 316 m²
  • Référence de l'annonce : 759-04
  • Prix de vente : 210 000 € FAI (Frais d'Agence Inclus)*
Empruntez aux meilleures conditionslogo meilleur taux

Cette annonce immobilière vous est proposée par :

L'AGENCE BY CBO

97438 Sainte-Marie

Ce bien vous intéresse ?
Contactez l'agence dès aujourd'hui...

En savoir plus sur l'agence L'AGENCE BY CBO

Cette agence immobilière propose à ce jour 95 biens à la vente sur Immodesiles.fr.

Vous pouvez consulter le barème d'honoraires de l'agence.

Autres terrains à vendre à Saint-Paul (97460), susceptibles de vous intéresser

a vendre - parcelle viabilisÉe de 355 m2 À marie caze, la plaine saint paul 2 Terrain 355 m² Saint-Paul (97460) terrain 355 m² Entre Savanna et la Plaine Saint Paul, CBo Territoria développe au coeur du nouveau Quartier de Marie Caze, le lotissement Zoiseau Blanc.Découvrez ces parcelles viabilisées et prêtes à bâtir, à proximité du lycée Saint-Paul IV, du CHOR et des commerces de proximité, et devenez propriétair... Réf. 759-03L'agence By Cbo 240 000 € soit 676 € /m² a vendre - parcelle de 273m2 dans le lotissement ti polka à marie caze 3 Terrain 334 m² Saint-Paul (97460) terrain 334 m² Entre Savanna et la Plaine Saint Paul, CBo Territoria vous présente le lotissement Ti Polka 2 et vous propose une parcelle de 334m2 viabilisée et prête à bâtir qui n'attend plus que votre future maison. Situé au coeur du Quartier Marie Caze, à proximité du lycée Saint-Paul IV, du CHOR et de... Réf. 757-42L'agence By Cbo 255 000 € soit 763 € /m² a vendre - grande parcelle viabilisÉe de 320 m2 À marie caze, la plaine saint paul 2 Terrain 320 m² Saint-Paul (97460) terrain 320 m² Entre Savanna et la Plaine Saint Paul, CBo Territoria développe au coeur du nouveau Quartier de Marie Caze, le lotissement Zoiseau Blanc.Découvrez ces parcelles viabilisées et prêtes à bâtir, à proximité du lycée Saint-Paul IV, du CHOR et des commerces de proximité, et devenez propriétair... Réf. 759-12L'agence By Cbo 210 000 € soit 656 € /m² 6 Terrain 490 m² Saint-Paul (97460) terrain 490 m² TERRAIN A VENDRE A SAINT PAUL DE LA REUNION, A BELLEMENE, à 380 mètres d'altitude, venez découvrir un terrain borné et plat d'une surface d'environ 490 m² . Vous profiterez d'une micro station neuve qui sera installée par le propriétaire, d'un raccordement en eau potable et d'une vue mer 180... Réf. GMRC-HWN-BLNAct'immo 277 250 € soit 566 € /m² a vendre - parcelle viabilisÉe de 313 m2 À marie caze, la plaine saint paul 2 Terrain 313 m² Saint-Paul (97460) terrain 313 m² Entre Savanna et la Plaine Saint Paul, CBo Territoria développe au coeur du nouveau Quartier de Marie Caze, le lotissement Zoiseau Blanc.Découvrez ces parcelles viabilisées et prêtes à bâtir, à proximité du lycée Saint-Paul IV, du CHOR et des commerces de proximité, et devenez propriétair... Réf. 759-22L'agence By Cbo 270 000 € soit 863 € /m²