Préciser votre budget :
OK
Préciser les pièces :
OK
Préciser les chambres :
OK
Préciser la surface :
OK
Préciser la surface :
OK
Plus de critères
Retour aux annonces

A vendre Terrain 313 m² Saint-Paul (97460) - Réunion

270 000 € FAI* soit 863 € /m²
miniature miniature
Empruntez aux meilleures conditionslogo meilleur taux

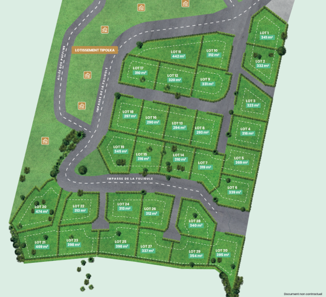
A VENDRE - PARCELLE VIABILISÉE DE 313 M2 À MARIE CAZE, LA PLAINE SAINT PAUL

Entre Savanna et la Plaine Saint Paul, CBo Territoria développe au coeur du nouveau Quartier de Marie Caze, le lotissement Zoiseau Blanc.Découvrez ces parcelles viabilisées et prêtes à bâtir, à proximité du lycée Saint-Paul IV, du CHOR et des commerces de proximité, et devenez propriétaire dans un environnement privilégié et résidentiel de l'ouest.Nous vous proposons cette parcelle de 313 m2 qui n'attend plus que votre future maison.
Prix de vente : 270 000 € FAI TTC Prix net vendeur : 255 353 € TTC Honoraires : 14 648 € TTC à la charge du vendeur
Les informations sur les risques auxquels ce bien est exposé sont disponibles sur le site Géorisques : www.georisques.gouv.fr

Caractéristiques de ce terrain à vendre à Saint-Paul (97460)

  • Surface habitable : 313 m²
  • Surface du terrain : 313 m²
  • Référence de l'annonce : 759-22
  • Prix de vente : 270 000 € FAI (Frais d'Agence Inclus)*
Empruntez aux meilleures conditionslogo meilleur taux

Cette annonce immobilière vous est proposée par :

L'AGENCE BY CBO

97438 Sainte-Marie

Ce bien vous intéresse ?
Contactez l'agence dès aujourd'hui...

En savoir plus sur l'agence L'AGENCE BY CBO

Cette agence immobilière propose à ce jour 95 biens à la vente sur Immodesiles.fr.

Vous pouvez consulter le barème d'honoraires de l'agence.

Autres terrains à vendre à Saint-Paul (97460), susceptibles de vous intéresser

a vendre - parcelle viabilisée de 313m2 à marie caze, la plaine saint paul 5 Terrain 313 m² Saint-Paul (97460) terrain 313 m² Entre Savanna et la Plaine Saint Paul, CBo Territoria développe au coeur du nouveau Quartier de Marie Caze, le lotissement Les Zirondelles. Découvrez ces parcelles viabilisées et prêtes à bâtir, à proximité du lycée Saint-Paul IV, du CHOR et des commerces de proximité, et devenez propriét... Réf. 751-16L'agence By Cbo 200 000 € soit 639 € /m² a vendre - parcelle viabilisée de 334m2 à marie caze, la plaine saint paul 2 Terrain 334 m² Saint-Paul (97460) terrain 334 m² Entre Savanna et la Plaine Saint Paul, CBo Territoria  développe au coeur du nouveau Quartier de Marie Caze, le lotissement Les Zirondelles. Découvrez ces parcelles viabilisées et prêtes à bâtir, à proximité du lycée Saint-Paul IV, du CHOR et des commerces de proximité, et devenez propriÃ... Réf. 751-02L'agence By Cbo 210 000 € soit 629 € /m² a vendre - parcelle de 386m2 dans le lotissement ti polka à marie caze 3 Terrain 386 m² Saint-Paul (97460) terrain 386 m² Entre Savanna et la Plaine Saint Paul, CBo Territoria vous présente le lotissement Ti Polka 2 et vous propose une parcelle de 386m2 viabilisée et prête à bâtir qui n'attend plus que votre future maison. Situé au coeur du Quartier Marie Caze, à proximité du lycée Saint-Paul IV, du CHOR et d... Réf. 757-31L'agence By Cbo 240 000 € soit 622 € /m² a vendre - parcelle viabilisÉe de 310 m2 À marie caze, la plaine saint paul 3 Terrain 310 m² Saint-Paul (97460) terrain 310 m² Entre Savanna et la Plaine Saint Paul, CBo Territoria développe au coeur du nouveau Quartier de Marie Caze, le lotissement Zoiseau Blanc.Découvrez ces parcelles viabilisées et prêtes à bâtir, à proximité du lycée Saint-Paul IV, du CHOR et des commerces de proximité, et devenez propriétair... Réf. 759-17L'agence By Cbo 250 000 € soit 806 € /m² parcelle de terrain avec vue mer à saint-paul 1 Terrain 349 m² Saint-Paul (97460) terrain 349 m² Belle parcelle de terrain de plus de 300 m², idéalement située à mi-hauteur de Saint-Paul, avec une vue mer exceptionnelle, offrant un cadre agréable et proche de toutes commodités. Ce terrain se trouve en zone Uc6, permettant une construction en R+1+combles avec une hauteur maximale de 9 mèt... Réf. 2855Outremer Immobilier 96 848 € soit 278 € /m²