Préciser votre budget :
OK
Préciser les pièces :
OK
Préciser les chambres :
OK
Préciser la surface :
OK
Préciser la surface :
OK
Plus de critères
Retour aux annonces

A vendre Terrain 217 m² Saint-Pierre (97410) - Réunion

232 000 € FAI* soit 1 069 € /m²
miniature miniature miniature miniature miniature miniature
Empruntez aux meilleures conditionslogo meilleur taux

chez PRMI / Terrain constructible "Quartier pêcheur" Terre-Sainte (97410)

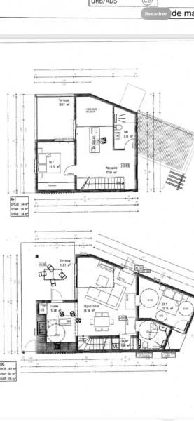
Emplacement très recherché : "Quartier pêcheur" Terre-Sainte ! Résidentiel et calme, proche de la promenade des Alizés, de la plage, des restaurants, des écoles et bien sûr des commerces du centre ville de Saint-Pierre ! Terrain de 217 m2 : plat, nu, à bâtir. Celui-ci bénéficie déjà d'un permis de construire obtenu en 2022. Pour y édifier une maison individuelle de 92 m2 (habitable) de type R+1. Voir plan + photos. -- IDEAL POUR UNE RESIDENCE PRINCIPALE / SECONDAIRE / LOCATION SAISONNIERE -- Informations complémentaires : - borné (via géomètre) - non viabilisé (mais raccordements proches y compris au tout à l'égout) - non clôturé -exposition (nord) ps : pas de copropriété, pas de lotissement et pas de servitude ! Visite possible avec le spécialiste de Saint-Pierre : Arnaud TREMOULET. Tél : [coordonnées réservées] ou [coordonnées réservées] Mail : [coordonnées réservées] Honoraires à la charge du vendeur. Bien non soumis au DPE. Les informations sur les risques naturels auxquels ce bien peut-être exposé sont disponibles sur le site : georisques.gouv.fr

Caractéristiques de ce terrain à vendre à Saint-Pierre (97410)

  • Surface habitable : 217 m²
  • Surface du terrain : 217 m²
  • Référence de l'annonce : 7414AT
  • Prix de vente : 232 000 € FAI (Frais d'Agence Inclus)*
  • * Honoraires à la charge du vendeur
Empruntez aux meilleures conditionslogo meilleur taux

Cette annonce immobilière vous est proposée par :

PRMI Sud/Ouest

Ce bien vous intéresse ?
Contactez l'agence dès aujourd'hui...

En savoir plus sur l'agence PRMI Sud/Ouest

Cette agence immobilière propose à ce jour 58 biens à la vente sur Immodesiles.fr.

Vous pouvez consulter le barème d'honoraires de l'agence.

Autres terrains à vendre à Saint-Pierre (97410), susceptibles de vous intéresser

a vendre- st pierre- terrain de 430m2- au calme d'une impasse. 3 Terrain 430 m² Saint-Pierre (97410) terrain 430 m² Situé dans le quartier recherché de Bois d'Olive à Saint-Pierre, ce terrain de 430 m² (lot n°3) vous séduira par son emplacement privilégié entre ville et nature. Vous profiterez d'une ambiance paisible, tout en étant à quelques minutes des écoles, commerces et de la plage. Imaginez ici ... Réf. 109486-Lot3Sunkaz 166 000 € soit 386 € /m² grands-bois - parcelle viabilisÉe de 356m2 : kaisary 2 8 Terrain 356 m² Saint-Pierre (97410) terrain 356 m² À la recherche d'un terrain prêt à accueillir vos rêves de maison dans le sud de l’île ? Découvrez nos parcelles prêtes à construire nichées aux portes de Saint-Pierre (direction sud-ouest). La résidence Kaisary vous promet une qualité de vie incomparable. Idéalement situé dans le qua... Réf. 762-2-03L'agence By Cbo 173 000 € soit 486 € /m² grands-bois - parcelle viabilisÉe de 332m2 : kaisary 2 8 Terrain 332 m² Saint-Pierre (97410) terrain 332 m² À la recherche d'un terrain prêt à accueillir vos rêves de maison dans le sud de l’île ? Découvrez nos parcelles prêtes à construire nichées aux portes de Saint-Pierre (direction sud-ouest). La résidence Kaisary vous promet une qualité de vie incomparable. Idéalement situé dans le qua... Réf. 762-2-09L'agence By Cbo 163 000 € soit 491 € /m² terrain plat idéalement placé 1 Terrain 596 m² Saint-Pierre (97410) terrain 596 m² Votre agence Stéphane Plaza Immobilier à Saint-Pierre de la Réunion est ravie de vous proposer à la vente deux parcelles plates de 596 m² et 619 m², idéalement situées dans le secteur de Saint-Pierre, Bois d'Olives. Un emplacement idéal : Profitez d'un cadre paisible tout en étant à seul... Réf. AP-CB-406-408Stephane Plaza Immobilier 183 000 € soit 307 € /m² saint-pierre - ligne paradis : terrain constructible de 374 m² 5 Terrain 374 m² Saint-Pierre (97410) terrain 374 m² L'agence PRMI de Saint-Pierre vous propose ce magnifique terrain constructible de 374 m². Situé dans le quartier résidentiel et paisible de La Ligne Paradis, ce terrain est idéalement placé à proximité des commodités (ZAC Canabady à 5 min en voiture et centre-ville de Saint-Pierre à 10 min... Réf. 7227BDPrmi Sud/ouest 184 000 € soit 492 € /m²