Préciser votre budget :
OK
Préciser les pièces :
OK
Préciser les chambres :
OK
Préciser la surface :
OK
Préciser la surface :
OK
Plus de critères
Retour aux annonces

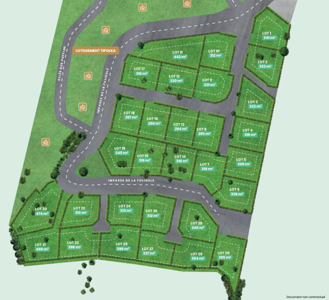
A vendre Terrain 442 m² Saint-Paul (97460) - Réunion

320 000 € FAI* soit 724 € /m²
miniature miniature miniature miniature
Empruntez aux meilleures conditionslogo meilleur taux

A VENDRE - PARCELLE VIABILISÉE DE 442 M2 À MARIE CAZE, LA PLAINE SAINT PAUL

Entre Savanna et la Plaine Saint Paul, CBo Territoria développe au coeur du nouveau Quartier de Marie Caze, le lotissement Zoiseau Blanc.Découvrez ces parcelles viabilisées et prêtes à bâtir, à proximité du lycée Saint-Paul IV, du CHOR et des commerces de proximité, et devenez propriétaire dans un environnement privilégié et résidentiel de l'ouest.Nous vous proposons cette parcelle de 442 m2 qui n'attend plus que votre future maison.
Prix de vente : 320 000 € FAI TTC Prix net vendeur : 302 640 € TTC Honoraires : 17 360 € TTC à la charge du vendeur
Les informations sur les risques auxquels ce bien est exposé sont disponibles sur le site Géorisques : www.georisques.gouv.fr

Caractéristiques de ce terrain à vendre à Saint-Paul (97460)

  • Surface habitable : 442 m²
  • Surface du terrain : 442 m²
  • Référence de l'annonce : 759-11
  • Prix de vente : 320 000 € FAI (Frais d'Agence Inclus)*
Empruntez aux meilleures conditionslogo meilleur taux

Cette annonce immobilière vous est proposée par :

L'AGENCE BY CBO

97438 Sainte-Marie

Ce bien vous intéresse ?
Contactez l'agence dès aujourd'hui...

En savoir plus sur l'agence L'AGENCE BY CBO

Cette agence immobilière propose à ce jour 95 biens à la vente sur Immodesiles.fr.

Vous pouvez consulter le barème d'honoraires de l'agence.

Autres terrains à vendre à Saint-Paul (97460), susceptibles de vous intéresser

a vendre - grande parcelle viabilisÉe de 293 m2 À marie caze, la plaine saint paul 2 Terrain 293 m² Saint-Paul (97460) terrain 293 m² Entre Savanna et la Plaine Saint Paul, CBo Territoria développe au coeur du nouveau Quartier de Marie Caze, le lotissement Zoiseau Blanc.Découvrez ces parcelles viabilisées et prêtes à bâtir, à proximité du lycée Saint-Paul IV, du CHOR et des commerces de proximité, et devenez propriétair... Réf. 759-08L'agence By Cbo 200 000 € soit 683 € /m² 6 Terrain 490 m² Saint-Paul (97460) terrain 490 m² TERRAIN A VENDRE A SAINT PAUL DE LA REUNION, A BELLEMENE, à 380 mètres d'altitude, venez découvrir un terrain borné et plat d'une surface d'environ 490 m² . Vous profiterez d'une micro station neuve qui sera installée par le propriétaire, d'un raccordement en eau potable et d'une vue mer 180... Réf. GMRC-HWN-BLNAct'immo 277 250 € soit 566 € /m² parcelle de terrain avec vue mer à saint-paul 1 Terrain 424 m² Saint-Paul (97460) terrain 424 m² Belle parcelle de terrain de plus de 400 m², idéalement située à mi-hauteur de Saint-Paul, avec une vue mer exceptionnelle, offrant un cadre agréable et proche de toutes commodités. Ce terrain se trouve en zone Uc6, permettant une construction en R+1+combles avec une hauteur maximale de 9 mèt... Réf. 2850Outremer Immobilier 117 660 € soit 278 € /m² 311 m2 a vendre - parcelle viabilisÉe de 311 m2 À marie caze, la plaine saint paul 4 Terrain 311 m² Saint-Paul (97460) terrain 311 m² Entre Savanna et la Plaine Saint Paul, CBo Territoria développe au coeur du nouveau Quartier de Marie Caze, le lotissement Les Zirondelles. Découvrez ces parcelles viabilisées et prêtes à bâtir, à proximité du lycée Saint-Paul IV, du CHOR et des commerces de proximité, et devenez propriét... Réf. 751-31L'agence By Cbo 200 000 € soit 643 € /m² a vendre - parcelle viabilisÉe de 332 m2 À marie caze, la plaine saint paul 2 Terrain 332 m² Saint-Paul (97460) terrain 332 m² Entre Savanna et la Plaine Saint Paul, CBo Territoria développe au coeur du nouveau Quartier de Marie Caze, le lotissement Zoiseau Blanc.Découvrez ces parcelles viabilisées et prêtes à bâtir, à proximité du lycée Saint-Paul IV, du CHOR et des commerces de proximité, et devenez propriétair... Réf. 759-02L'agence By Cbo 220 000 € soit 663 € /m²